很实用的施工图常用符号及图例大全!
- 生活百科
- 2026-03-19
- 435

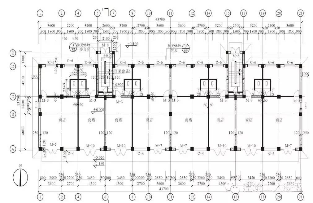
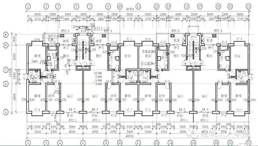
一、定位轴线
1、定位轴线的作用
(1)设计和读图时定位的重要依据;
(2)施工中墙身砌筑、柱梁浇筑、构件安装等定位、放线的依据。
规定: 主要承重构件,应绘制水平和竖向定位轴线,并编注轴线号
对非承重墙或次要承重构件,编写附加定位轴线。
2.定位轴线的编号
(1)横向定位轴线编号用阿拉伯数字,自左向右顺序编写;
(2)纵向轴线编号用拉丁字母(除I、O、Z),自下而上顺序编写。
平面图上定位轴线的编号,宜标注在图样的下方与左侧。在两轴线之间,有的需要用附加轴线表示,附加轴线用分数编号。
(3)对于详图上的轴线编号,若该详图同时适用多根定位轴线,则应同时注明各有关轴线的编号,如下图所示。


二、索引符号与详图符号
1、作用:
2、画法:

三、标高符号
1、标高是标注建筑物高度方向的一种尺寸形式,以米为单位。
绝对标高:以青岛附近黄海平均海平面为零点测出的高度尺寸,它仅使用在建筑总平面图中。
相对标高: 以建筑物底层室内陆面为零点测出的高度尺寸。
建筑标高:指楼地面、屋面等装修完成后构件的表面的标高。如楼面、台阶顶面等标高。
结构标高:指结构构件未经装修的表面的标高。如圈梁底面、梁顶面等标高。
2、标高符号画法及标高尺寸标注
(1)等腰直角三角形,细实线绘制,斜边上的高约3mm;
(2)总平面图室外地坪标高符号,宜用涂黑的等腰直角三角形
(3)符号尖端应指被注高度的位置,一般应向下,也可向上。
(4)标高数字的正负号、小数位数(两位或三位)、同一位置要标几个标高时。

四、引出线
1、画法

五、其他符号
连接符号
1、用途
对于较长的构件,当其长度方向的形状相同或按一定规律变化时,可断开绘制,断开处应用连接符号表示。
2、画法
连接符号为折断线(细实线),并用大写拉丁字母表示连接编号。

折断符号
(1)直线折断:当图形采用直线折断时,其折断符号为折断线,它经过被折断的图面。
(2)曲线折断:对圆形构件的图形折断,其折断符号为曲线。

对称符号
1、用途
当房屋施工图的图形完全对称时,可只画该图形的一半,并画出对称符号,以节省图纸篇幅。
2、画法
在对称中心线(细单点长画线)的两端画出两段平行线(细实线)。平行线长度为6~10mm,间距为2~3mm,且对称线两侧长度对应相等。

指北针
1、用途
在总平面图及底层建筑平面图上,一般都画有指北针,以指明建筑物的朝向。
2、画法
(1)圆的直径宜为24mm,用细实线绘制;
(2)指针尾端的宽度3mm,需用较大直径绘制指北针时,指针尾部宽度宜为圆的直径的1/8;
(3)指针涂成黑色,针尖指向北方,并注“北”或“N”字。

风向频率玫瑰图
1、用途
用来表示该地区常年的风向频率和房屋的朝向。
2、画法
根据当地多年平均统计的各个方向吹风次数的百分数,按一定比例绘制的。
3、阅读
风的吹向是指从外吹向中心。实线范围表示全年风向频率,虚线范围表示夏季风向频率。


坡度
在施工图中对倾斜部分的标注,通常用坡度(斜度)来表示,当坡度方向不明显时,在坡度的数字下面应加注坡度符号,坡度符号一般指向下坡方向
(1)坡度较大时采用
(2)坡度一般时采用
(3)坡度平坦且坡度方向不明显时采用
(4)道路及路面的坡度标志
本图适用于总图
(5)管道的坡度标志

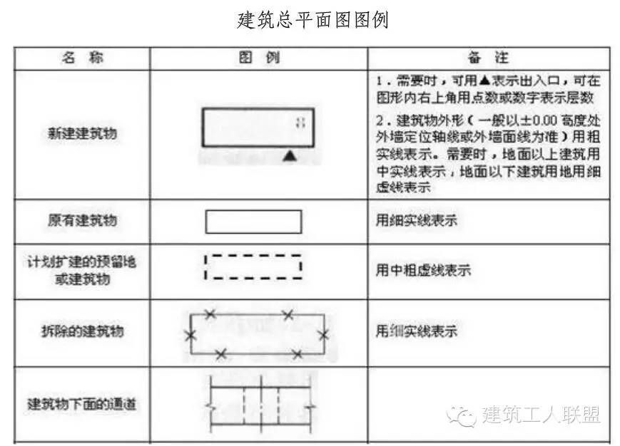
六、常用图例符号














发表评论